はにわタウン ー衰退するニュータウンの古墳によるブランド化計画ー
- Daiu Mabuchi
- 2022年3月9日
- 読了時間: 1分
更新日:2022年3月10日
2021 平尾海人
2021年度 岡山理科大学工学部建築学科 卒業設計審査会 審査員特別賞
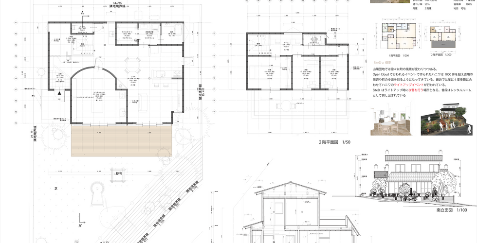
岡山県赤磐市の南に位置する山陽団地は、いわゆるオールドニュータウン問題に直面している。この団地では、分譲当時に入居した人々が一斉に高齢者となり、急激に空き家が増加することが懸念されている。一方で、この団地は、埋蔵文化財の発掘調査が5ヶ年にわたり行われた遺跡群の上につくられている。今もなお、団地には古墳の痕跡が点在し、古墳マニアの間では人気のエリアとなっている。
本計画では、山陽団地のアイデンティティーである「古墳時代」をキーワードに、地域ぐるみのDIY活動を持続的に行うことで、古くも新しい古墳感あふれる土着的な景観を作り上げる過程を提案する。





















コメント